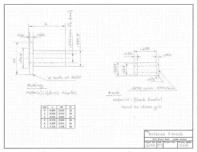
The bushing is pressed into the spool, and rides on a .2500 inch diameter spindle. For a good running fit, I finish the bushing bore with a “standard” 6.4 mm (0.252 inch) reamer. This is a close enough fit that it is necessary to ream a second time after press into the spool.

The ratchet is integral with the bushing and is cut with a standard involute gear cutter.
The knob as drawn has a cylindrical outer surface, but the one in the photo has been shaped.
