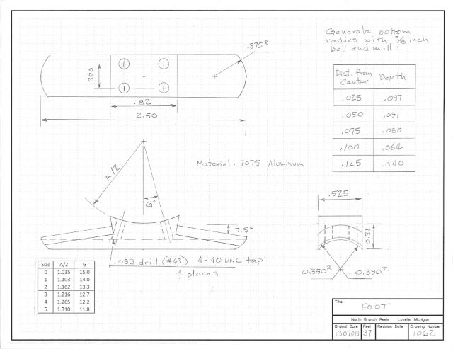
The foot is entirely made on the mill, except that I use the lathe to turn a sanding mandrel for the bottom surface.

For the many posts on machining the foot, go over to “Categories” at the right edge of the page and click on “Foot”. Particularly see 10 Sept 2013, “New Foot Fixtures”.
